Bilocale in vendita

Roma, Via Andrea Ferrara - Aurelia
€ 269.000
Prezzo aggiornato
2 locali 2 locali
74 Mq 74 Mq
1 bagno 1 bagno

Bilocale in vendita

Roma, Via Andrea Ferrara - Aurelia

Descrizione annuncio

VIA ANDREA FERRARA (Aurelia Ergife)

4 MOTIVI PER ACQUISTARLO:

-Ampio giardino;

-Ingresso indipendente;

-Ottimo investimento;

-Contesto tranquillo e immerso nel verde.

In zona residenziale e completamente immersa nel verde, adiacente all’Ergife Palace Hotel e a soli 10 minuti a piedi dalla Metro A fermata di Cornelia, proponiamo in vendita un ampio bilocale.

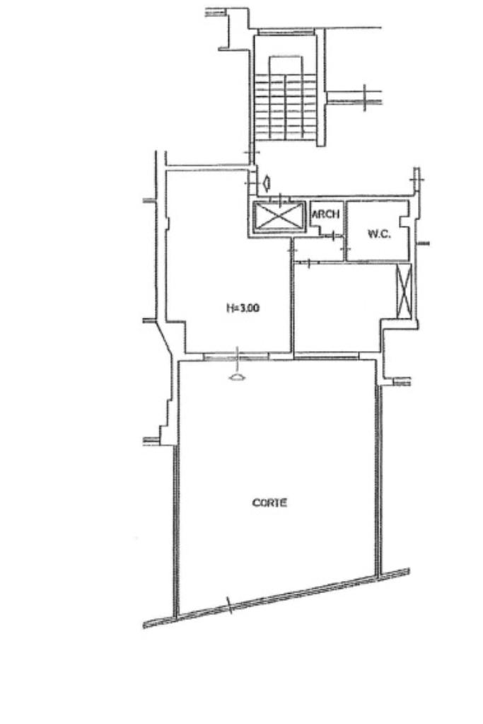
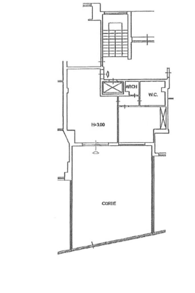
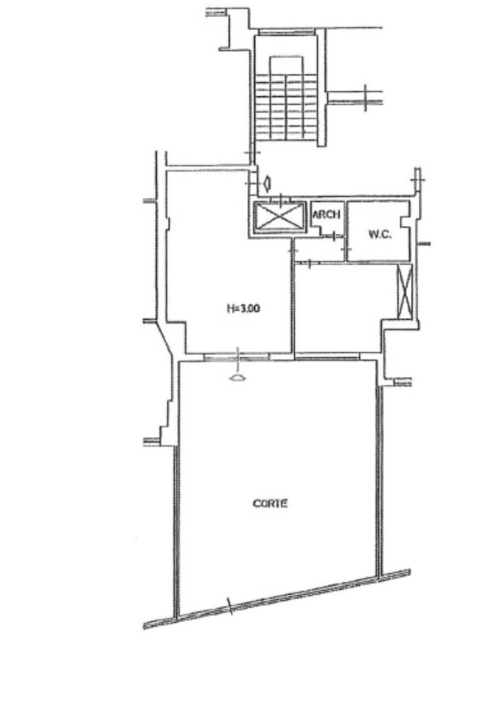
L'immobile, situato al piano terra, si trova all’interno di una palazzina in cortina degli anni ’70 circa di quattro piani.

Internamente l’appartamento è composto da ingresso, soggiorno con angolo cottura, camera da letto matrimoniale, ripostiglio e bagno.

Un elemento che rende questa casa davvero unica è il grande giardino abitabile, dotato di ingresso indipendente direttamente dalla via, che assicura privacy e comodità.

La soluzione si presenta in buono stato ed è dotato di infissi in legno doppio vetro, grate anti intrusione, riscaldamento autonomo, condizionatori in ogni ambiente e porta d’ingresso blindata.

L’immobile rappresenta un eccellente investimento, grazie anche alla vicinanza all’Hotel Ergife e alla recente apertura della nuova sede dell’Università Link; è ideale inoltre per chi desidera vivere in un contesto silenzioso e verde, pur restando in una posizione strategica e ben collegata con il centro città e il GRA.

Offriamo valutazioni gratuite per eventuali permute e assistenza completa per la richiesta di mutui tramite istituti di credito convenzionati.

Per maggiori informazioni o per fissare un appuntamento, contattaci!

Mostra tutto

Nelle vicinanze

Trasporto pubblico Trasporto pubblico
Cornelia
Cornelia
1,0 Km
Baldo degli Ubaldi
Baldo degli Ubaldi
1,3 Km
Valle Aurelia
Valle Aurelia
2,2 Km
stazione di Roma Aurelia
stazione di Roma Aurelia
2,3 Km
Casaletto
Casaletto
2,5 Km
Ricariche auto elettriche Ricariche auto elettriche
The Church Palace
650 m
Crowne Plaza Rome-St. Peter's
750 m
Eneldrive Battistini
1,5 Km
Roma Gregorio VII | EnelX
1,6 Km
EnelX EVA+ Distributore IP Matic La Pisana
2,6 Km
Scuole Scuole
Pontificio Collegio Internazionale Maria Mater Ecclesiae
430 m
Scuola Germanica Roma
800 m
Scuole
1,4 Km
ITI Albert Einstein
1,8 Km
IIS Einstein-Bachelet
1,9 Km
Farmacia Farmacia
Farmacia
1,1 Km
Pulker Farma
1,2 Km
Farmacia Colle Aurelio
1,4 Km
Farmacia la fenicia
1,7 Km
Farmacia Crescimanno
2,4 Km
Ospedali Ospedali
Clinica Villa Benedetta
1,0 Km
IDI (Istituto Dermopatico dell'Immacolata)
1,3 Km
San Raffaele Pisana
1,7 Km
San Carlo di Nancy
1,7 Km
Aurelia Hospital
1,8 Km
Supermercati Supermercati
Carrefour Market
430 m
InGrande
820 m
CTS
860 m
Simply Market
1,1 Km
Tuadi market
1,2 Km
Negozi Negozi
Mini Market
840 m
Old England
1,1 Km
Pascucci
1,1 Km
Family Factor
1,9 Km
Diffusione Tessile
2,0 Km
Bar Bar
Miani
980 m
Maurizio
1,1 Km
Bar
2,0 Km
Dea & Dea Bar
2,0 Km
Bar Roma
2,5 Km
Ristoranti Ristoranti
Ristoranti
210 m
IL POSTIGLIONE
240 m
Benvenetto
250 m
Arturo all'Antica Aurelia
690 m
Al giardino d'Abruzzo
830 m
Mostra tutto

Caratteristiche

Rif.:
61151150
Piano:
Terra con giardino di 4 con ascensore
Totale piani:
4
Camere da letto:
1
Arredamento:
Assente
Condizionamento:
Autonomo
Mostra tutto
Prezzo Prezzo
€ 269.000
Rata mutuo Rata mutuo
€ 1.256 / mese
Spese annue Spese annue
€ 1.800
Proponi il tuo prezzoProponi il tuo prezzo

Classe Energetica

A1
A1
A1
A1
A1
A1
A1
A1
A1
EP invernale del fabbricato:
EP estiva del fabbricato:
Anno di costruzione:
1973
Riscaldamento:
Autonomo
Tipo impianto:
A radiatori
Tipo alimentazione:
Altro

Prezzo ridotto di €1 (6%%)

Ti interessa visionare l'immobile?

Fissa un appuntamento  Fissa un appuntamento

Richiedi informazioni

Clicca su Leggi per aprire l'informativa
* Questi campi sono obbligatori

Calcola il tuo mutuo

Semplice e senza impegno
Anticipo

( % )
Mutuo

( % )

pochi semplici passi

inserisci i tuoi dati
Questionario completato
Grazie per aver richiesto un appuntamento senza impegno con un nostro Consulente del Credito e Assicurativo.

Hai inserito correttamente tutti i dati necessari e a breve riceverai una e-mail con un link da convalidare per inviare i tuoi dati.
Affiliato
Studio Aurelia Srl
Via Aurelia, 446 00165 Roma (RM)

Il nostro staff


  • Giacomo Campisano
    Affiliato

  • Matteo Fiore
    Collaboratore

  • Marwn Kefi
    Collaboratore

  • Daniele Erriu
    Collaboratore

  • Fabio Tassone
    Collaboratore
Via Aurelia, 446 00165 Roma (RM)
Zona: Aurelia
Mostra su mappa
Orari: dal lunedì al venerdì 9.00-20.00, sabato matt. 9.00-13.00 pom 15.00-20.00; domenica su appuntamento 10.00-12.00
Affiliato
Studio Aurelia Srl
Via Aurelia, 446 00165 Roma (RM)

2026 Tecnocasa Franchising S.p.A. - P. IVA 08365160152 - Via Monte Bianco 60/A 20089 Rozzano (MI). Ogni agenzia ha un proprio titolare ed è autonoma. Privacy policy | Policy utilizzo | Cookie policy