Trilocale in vendita

Roma, Appartamento Via Dolceacqua - Aurelia Antica
€ 345.000
3 locali 3 locali
84 Mq 84 Mq
2 bagni 2 bagni

Trilocale in vendita

Roma, Appartamento Via Dolceacqua - Aurelia Antica

Descrizione annuncio

Via Dolceacqua – Zona Aurelia Antica (AD. VIA DEL FONTANILE ARENATO)

4 MOTIVI PER SCEGLIERE QUESTO IMMOBILE:

- Pronto e abitabile da subito;

- Ottima Esposizione;

- Ottima disposizione degli spazi interni;

- Strategicamente posizionato.

In zona residenziale e completamente immersa nel verde, a pochi minuti da Largo Don Guanella e Via Aurelia Antica, proponiamo in vendita SPLENDIDO TRILOCALE.

L'immobile, posto al piano terzo, si trova all'interno di una palazzina in cortina degli anni '60 ca recentemente ristrutturata.

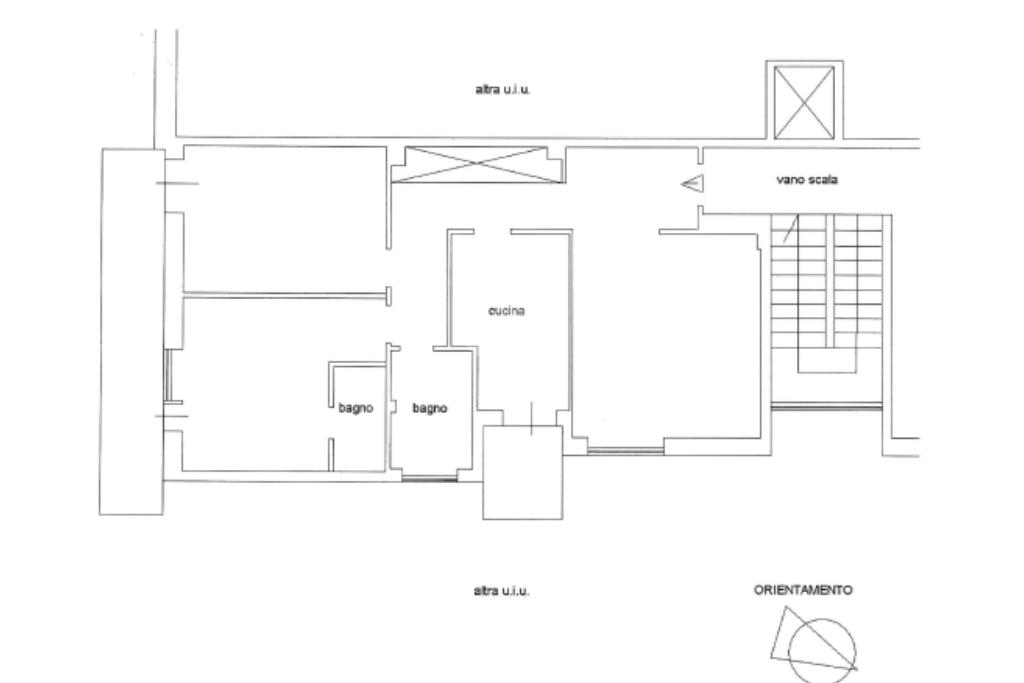
Internamente l’appartamento è composto da ingresso, soggiorno, due camere da letto, cucina separata, due bagni e due balconi.

L’ abitazione si presenta completamente ristrutturata e rifinita in ogni dettaglio; è dotata di riscaldamento autonomo, condizionatori, citofono, infissi in doppio vetro/pvc, grate e zanzariere in tutte le aperture e porta blindata.

Grazie alla doppia esposizione (sud-est) e all'affaccio aperto, la casa risulta particolarmente luminosa e ben ventilata, garantendo un ambiente accogliente e confortevole.

La soluzione è la scelta ideale per chi desidera un immobile ristrutturato, pronto per essere abitato, con spazi esterni vivibili e una posizione strategica, a pochi minuti dal centro e dai principali servizi.

Possibilità di acquistare un Posto Auto coperto a parte.

Valutazioni gratuite per eventuali permute e assistenza mutui con gli istituti di credito convenzionati.

Per maggiori informazioni o per fissare un appuntamento contattaci.

Mostra tutto

Nelle vicinanze

Trasporto pubblico Trasporto pubblico
Cornelia
Cornelia
1,9 Km
Baldo degli Ubaldi
Baldo degli Ubaldi
2,0 Km
stazione di Roma Aurelia
stazione di Roma Aurelia
1,9 Km
Valle Aurelia
Valle Aurelia
2,9 Km
Casaletto
Casaletto
2,1 Km
Ricariche auto elettriche Ricariche auto elettriche
Crowne Plaza Rome-St. Peter's
830 m
The Church Palace
1,5 Km
EnelX EVA+ Distributore IP Matic La Pisana
1,6 Km
Roma Gregorio VII | EnelX
2,0 Km
Eneldrive Battistini
2,4 Km
Scuole Scuole
Scuole
420 m
Pontificio Collegio Internazionale Maria Mater Ecclesiae
530 m
Scuola Germanica Roma
1,0 Km
Istituto di Istruzione Superiore "Via Silvestri 301"
1,2 Km
Buon Pastore, Licei Malpighi, Ceccherelli, Volta
1,3 Km
Farmacia Farmacia
Farmacia
760 m
Farmacia Colle Aurelio
2,1 Km
Pulker Farma
2,1 Km
Farmacia la fenicia
2,6 Km
Farmacia Pharma Experience Monteverde
2,8 Km
Ospedali Ospedali
San Raffaele Pisana
750 m
Aurelia Hospital
1,6 Km
Clinica Villa Benedetta
1,9 Km
IDI (Istituto Dermopatico dell'Immacolata)
2,1 Km
San Carlo di Nancy
2,3 Km
Supermercati Supermercati
Vivo Supermercato
390 m
Conad
910 m
Carrefour Market
1,2 Km
Panorama
1,2 Km
Pam Local
1,2 Km
Negozi Negozi
Mini Market
1,7 Km
Old England
1,9 Km
Pascucci
2,1 Km
Pasta All'Uovo
2,6 Km
Antico Forno Cotugno
2,7 Km
Bar Bar
Miani
40 m
Maurizio
110 m
Dea & Dea Bar
3,0 Km
Bar
3,0 Km
Ristoranti Ristoranti
Etnico Peruviano
40 m
Al giardino d'Abruzzo
220 m
Corona Magnifica
340 m
Pharina Pizza Romana
380 m
I Gerani da Peppe
550 m
Mostra tutto

Caratteristiche

Rif.:
61178273
Piano:
3 di 5 con ascensore (Piano alto)
Posti auto:
1
Balconi:
2
Camere da letto:
2
Arredamento:
Parziale
Mostra tutto
Prezzo Prezzo
€ 345.000
Rata mutuo Rata mutuo
€ 1.646 / mese
Spese annue Spese annue
€ 1.440
Proponi il tuo prezzoProponi il tuo prezzo

Classe Energetica

G
G
G
G
G
G
G
G
G
Anno di costruzione:
1962
Riscaldamento:
Autonomo
Tipo impianto:
A radiatori
Tipo alimentazione:
Metano

Ti interessa visionare l'immobile?

Fissa un appuntamento  Fissa un appuntamento

Richiedi informazioni

Clicca su Leggi per aprire l'informativa
* Questi campi sono obbligatori

Calcola il tuo mutuo

Semplice e senza impegno
Anticipo

( % )
Mutuo

( % )

pochi semplici passi

inserisci i tuoi dati
Questionario completato
Grazie per aver richiesto un appuntamento senza impegno con un nostro Consulente del Credito e Assicurativo.

Hai inserito correttamente tutti i dati necessari e a breve riceverai una e-mail con un link da convalidare per inviare i tuoi dati.
Affiliato
Studio Aurelia Srl
Via Aurelia, 446 00165 Roma (RM)

Il nostro staff


  • Giacomo Campisano
    Affiliato

  • Matteo Fiore
    Collaboratore

  • Marwn Kefi
    Collaboratore

  • Daniele Erriu
    Collaboratore

  • Fabio Tassone
    Collaboratore
Via Aurelia, 446 00165 Roma (RM)
Zona: Aurelia
Mostra su mappa
Orari: dal lunedì al venerdì 9.00-20.00, sabato matt. 9.00-13.00 pom 15.00-20.00; domenica su appuntamento 10.00-12.00
Affiliato
Studio Aurelia Srl
Via Aurelia, 446 00165 Roma (RM)

2026 Tecnocasa Franchising S.p.A. - P. IVA 08365160152 - Via Monte Bianco 60/A 20089 Rozzano (MI). Ogni agenzia ha un proprio titolare ed è autonoma. Privacy policy | Policy utilizzo | Cookie policy