Trilocale in vendita

Roma, Appartamento via michele rosi - Aurelia
€ 85.000
3 locali 3 locali
64 Mq 64 Mq
1 bagno 1 bagno

Trilocale in vendita

Roma, Appartamento via michele rosi - Aurelia

Descrizione annuncio

VIA MICHELE ROSI ( Aranova)

4 MOTIVI PER ACQUISTARLO

- Posto auto

- Contesto tranquillo

- Ottima esposizione

- Luminoso

Trilocale con posto auto – zona Aranova

In un contesto tranquillo e riservato, proponiamo in vendita appartamento degli anni ‘50 di 64 mq posto al primo piano, ideale per chi cerca una soluzione funzionale, luminosa e ben distribuita.

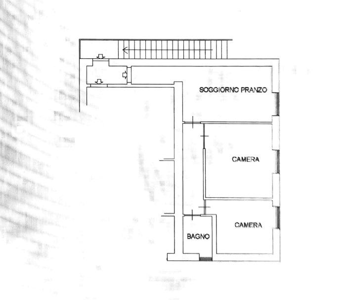
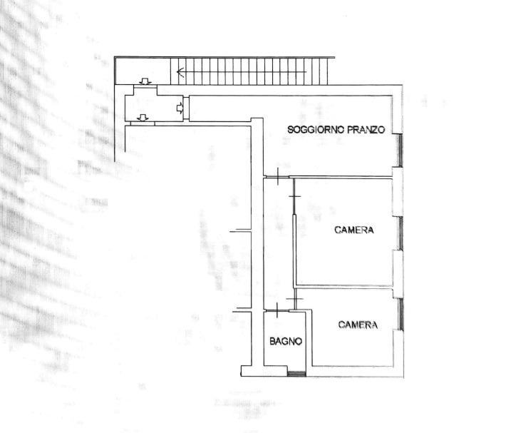
L’immobile internamente è composto da Ingresso su corridoio che collega tutti gli ambienti.
Soggiorno con angolo cottura, una prima ampia camera matrimoniale, seconda cameretta con finestra, un bagno finestrato con box doccia.
Gli spazi interni risultano ben organizzati, con una buona luminosità naturale in ogni ambiente.

L’appartamento si presenta in condizioni abitabili, ideale sia come prima casa che come investimento.

Perfetto per coppie, single o piccoli nuclei familiari alla ricerca di tranquillità a pochi minuti da Roma.

Mostra tutto

Nelle vicinanze

Trasporto pubblico Trasporto pubblico
Trasporto pubblico
1,3 Km
Aranova
Aranova
1,7 Km
Ricariche auto elettriche Ricariche auto elettriche
Aranova Rosi | EnelX
1,5 Km
Farmacia Farmacia
Farmacia
2,8 Km
Supermercati Supermercati
Pam club
2,7 Km
Ristoranti Ristoranti
Capo Horn il porto
2,1 Km
Trattoria Pizzeria da Carlo
2,7 Km
I Conti
2,7 Km
Mostra tutto

Caratteristiche

Rif.:
61193548
Piano:
1 di 1 (Piano basso)
Camere da letto:
2
Arredamento:
Parziale
Condizionamento:
Assente
Ascensore:
No
Mostra tutto
Prezzo Prezzo
€ 85.000
Rata mutuo Rata mutuo
€ 402 / mese
Spese annue Spese annue
€ 0
Proponi il tuo prezzoProponi il tuo prezzo

Classe Energetica

G
G
G
G
G
G
G
G
G
Anno di costruzione:
1950
Riscaldamento:
Autonomo
Tipo impianto:
A radiatori
Tipo alimentazione:
Metano

Ti interessa visionare l'immobile?

Fissa un appuntamento  Fissa un appuntamento

Richiedi informazioni

Clicca su Leggi per aprire l'informativa
* Questi campi sono obbligatori

Calcola il tuo mutuo

Semplice e senza impegno
Anticipo

( % )
Mutuo

( % )

pochi semplici passi

inserisci i tuoi dati
Questionario completato
Grazie per aver richiesto un appuntamento senza impegno con un nostro Consulente del Credito e Assicurativo.

Hai inserito correttamente tutti i dati necessari e a breve riceverai una e-mail con un link da convalidare per inviare i tuoi dati.
Affiliato
Studio Aurelia Srl
Via Aurelia, 446 00165 Roma (RM)

Il nostro staff


  • Giacomo Campisano
    Affiliato

  • Matteo Fiore
    Collaboratore

  • Marwn Kefi
    Collaboratore

  • Daniele Erriu
    Collaboratore

  • Fabio Tassone
    Collaboratore
Via Aurelia, 446 00165 Roma (RM)
Zona: Aurelia
Mostra su mappa
Orari: dal lunedì al venerdì 9.00-20.00, sabato matt. 9.00-13.00 pom 15.00-20.00; domenica su appuntamento 10.00-12.00
Affiliato
Studio Aurelia Srl
Via Aurelia, 446 00165 Roma (RM)

2026 Tecnocasa Franchising S.p.A. - P. IVA 08365160152 - Via Monte Bianco 60/A 20089 Rozzano (MI). Ogni agenzia ha un proprio titolare ed è autonoma. Privacy policy | Policy utilizzo | Cookie policy